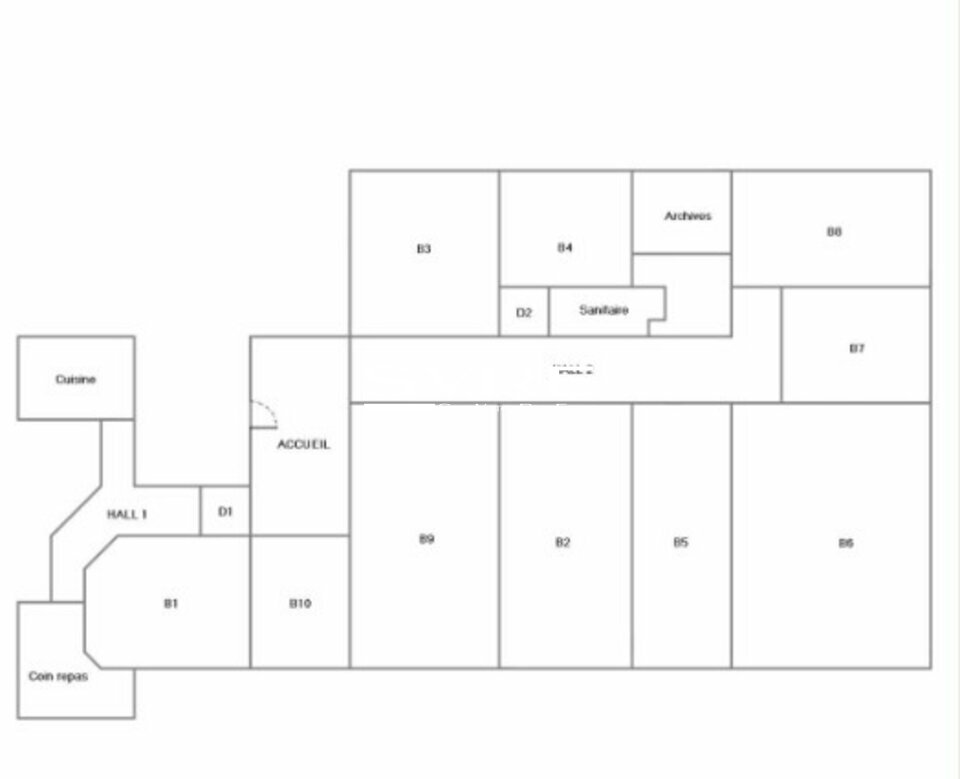
À louer Bureaux de caractère Environ 350 m² Centre-ville
SVRE vous propose à la location une belle surface de bureaux d’environ 350 m² en R+3. Le cachet de l’ancien est soigneusement préservé, apportant un charme unique à cet espace professionnel tout en offrant confort et fonctionnalité en plein centre-ville de Marseille !
Ces bureaux se composent de :
-
Une salle d’accueil,
-
Huit bureaux lumineux,
-
Une grande cuisine,
-
Deux WC,
-
Plusieurs salles d’archives.
Honoraires: 15% HT + TVA du montant du loyer annuel HTHC à la charge du preneur
MARSEILLE Centre ville
Préfecture
MARSEILLE











